Holz-\Alusystem für Fenster bieten wir unseren anspruchsvolleren Kunden, die unkonventionelle Lösungen und Vorschläge erwarten. Diese Art des Fenstersystems vereint hohe ästhetische Werte und die beste Sicherung des Holzes gegen Außeneinflüsse. Überdies ermöglicht das System, Behaglichkeit, die Holz vermittelt mit innovativem Alueinsatz zu verbinden. Alu-\ Holzkombination garantiert - außer einer ungewöhnlichen Beständigkeit des Fenstersystems - auch ein hohes Wärmedämmvermögenen.
Pulverlackierung
Ausgezeichnete Vorbereitung der Schicht durch Entfettung, Ätzen sowie Chromatieren garantiert hervorragendes Haftvermögen und langjährige Beständigkeit der Beschichtung.
Pulverlackierung lässt eine ganze Menge von RAL-Farben auswählen.
ANODISIEREN
Es ist eine Art der Veredelung von Aluoberflächen durch elektrolytische Bildung einer Oxidschicht. Sie bietet einen äußerst hohen Schutz gegen Korrosionsangriffe. Gleichzeitig können auch Verschleißschutzeigenschaften erzeugt werden.
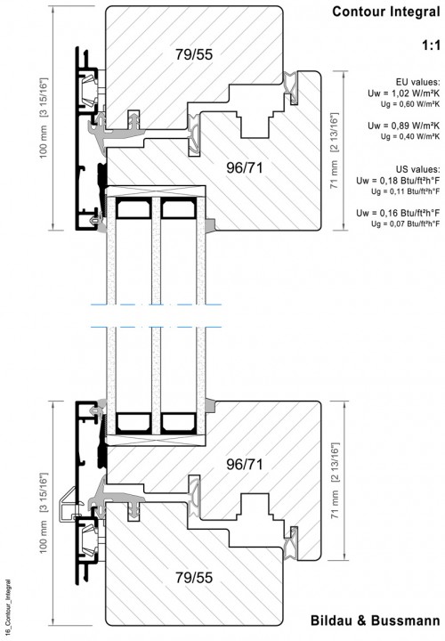
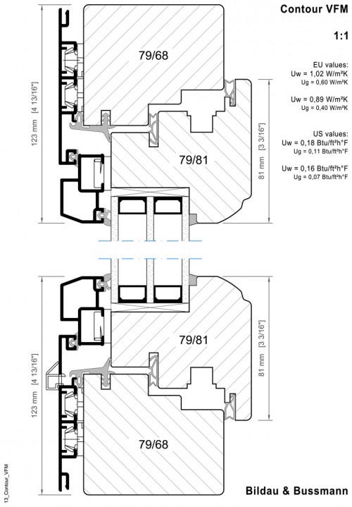
ALUPROFILE
(klicke auf das untere Profil, um zu vergrößern)
![]() ![]() |
![]() ![]() |
![]() ![]() |
Mira | Mira Therm | Contour VFM |
![]() ![]() |
![]() ![]() |
![]() ![]() |
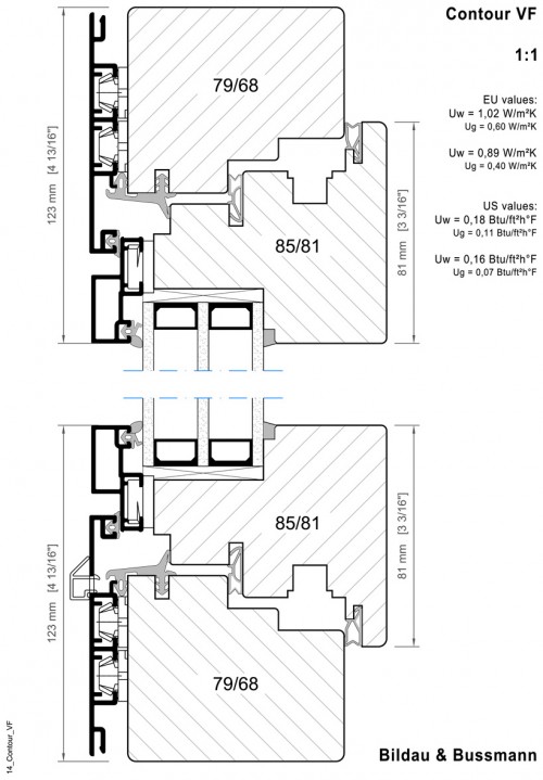
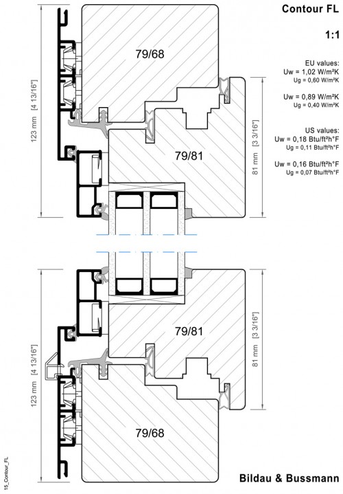
Contour VF | Contour FL | Contour Integral |
![]() ![]() |
![]() ![]() |
|
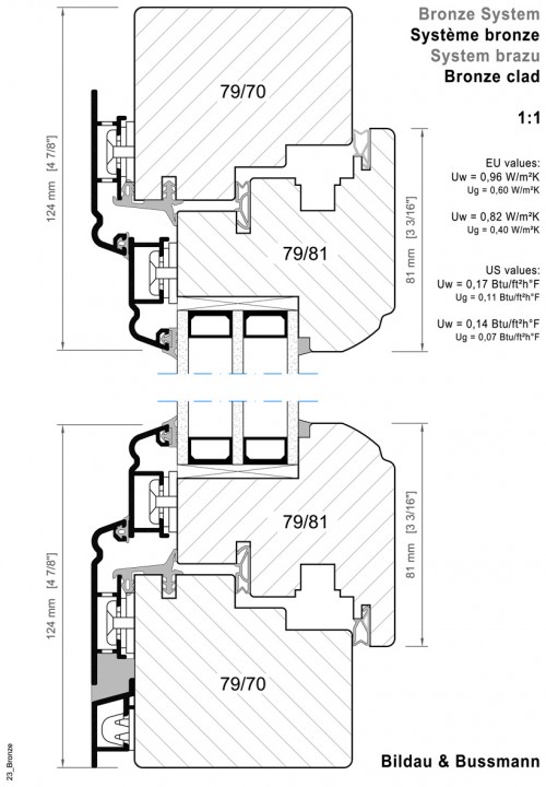
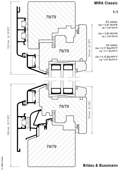
Mira Classic | Bronze System |